FHNW
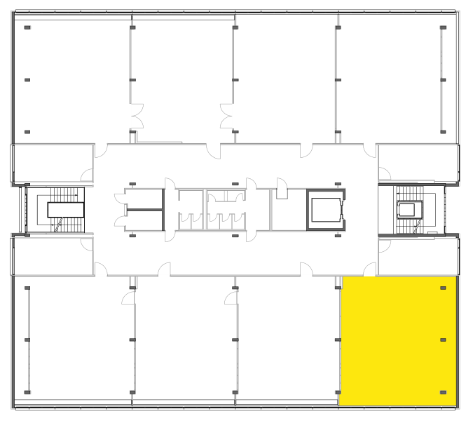
4.511 - FATX Atelier Textil
Textiles Gestalten ISEK
12 Personen
104.88 m2
Standort
CBW
Gebäude 4, OG 5
Steinackerstrasse 5
5210 Windisch
Standort
Raum
4.511 - FATX Atelier Textil
×
Next
Previous
Plan
QR Code - Raumreservation