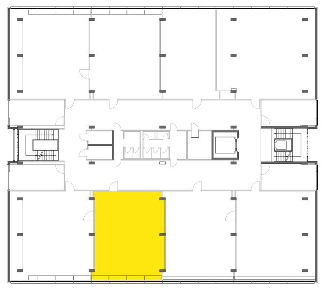
4.315 - FLCH Labor Chemie

Praktikum Chemie

15 Personen

Standort

CBW
Gebäude 4, OG 3
Steinackerstrasse 5
5210 Windisch

Standort

Raum


Plan

Leider ist kein Plan für diesen Raum verfügbar.

QR Code - Raumreservation